Качалка Дуэт КЧ001.00.1
- Габариты, ДхШхВ
- 2.70 х 0.60 x 0.70 м
- Масса изделия, кг
- 27,66
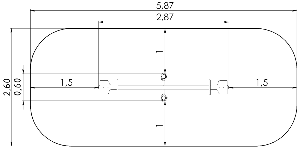
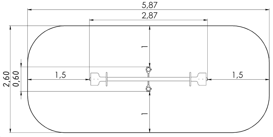
- Размеры площадки для установки
- Не менее 5,87 х 2,6 м
- Возраст
- 3-7 лет
- Гарантийный срок
- 12 месяцев
- Назначенный срок службы
- 5 лет
- Сведения о сертификате
- ЕАЭС RU C-RU.HA46.B.00268/20 с 01.06.20 по 31.05.25
- Соответствие стандартам
- Данное изделие спроектировано и изготовлено согласно ТР042/2017, ГОСТ Р 52169-2012 и соответствует требованиям ТУ 28.99.32-001-09880273-2019
- Требуемая минимальная толщина синтетического покрытия
- 20 мм
Качели любят многие дети самого разного возраста. На них можно не только весело проводить время, но и в игровой форме энергично с удовольствием укреплять здоровье, развивать мышцы рук, ног и спины, осанку, вестибулярный аппарат и чувство равновесия, улучшать координацию в пространстве. Качели-балансир - классический аттракцион, неотъемлемый игровой элемент игровой площадки. Он способствует развитию у детей и подростков навыков межличностного общения, учит правильно выстраивать коммуникацию. Ребята не просто проводят время на площадке, но и заводят новых друзей, веселятся вместе.
- Каркас качели выполнен из опорных стоек 800 мм (2 шт.) и дугообразной балки-балансира для качели. Опорные стойки и балка представляют собой цельнометаллическую конструкцию из стальной трубы диаметром не менее 89 мм, с толщиной стенки не менее 2 мм. Опорные стойки устанавливаются с помощью специальных закладных под трубу (из арматуры длиной не менее 200 мм, диаметром не менее 8 мм) методом бетонирования.
- Перемычка для соединения между собой стоек выполнена из трубы диаметром не менее 26,8 мм, толщиной не менее 2,8 мм. Труба фиксируется к стойкам при помощи пластиковых хомутов из стеклонаполненного полиамида, фиксирующихся болтовыми соединениями, скрытыми в конструкции хомута. Использование стекловолоконного наполнителя увеличило прочностью, жесткость, стойкость к теплу и растрескиванию. Для надежной фиксации хомутов предусмотрены уплотнительные резиновые вставки, благодаря чему хомут плотно прилегает к трубе, не скользит в процессе эксплуатации.
- Балка-балансир закреплена на валу с помощью капролоновых втулок (2 шт.).
- Балка балансира оснащена с обеих сторон ручками в виде круглых поручней методом сварки. Ручка-кольцо (2 шт.) изготавливается из металлической трубы диаметром не менее 26,8 мм с толщиной стенки не менее 2,8 мм.
- Седло (2 шт.) изготовлены из влагостойкой ламинированной фанеры FOF толщиной не менее 12 мм. Кромки фанеры закруглены и шлифованы.
- Под сидениями прикреплены резиновые амортизирующие элементы.
- В местах обрезки труб предусмотрены круглые пластмассовые декоративные заглушки для труб. Заглушки изготовлены путем литья пластика на термопластичных автоматах.
- Все открытые болтовые соединения должны защищаться пластиковыми заглушками; концы болтов должны быть обрезаны и защищены травмобезопасными пластиковыми колпачками.
- Все изображения печатаются износостойкими красками на UV-принтере с нанесением стилистического изображения и покрытием дополнительным финишным слоем защитного антивандального двухкомпонентного лака, который образует прочную износостойкую пленку. Готовое покрытие химически инертно, не токсично, гипоаллергенно, устойчиво к трению, царапинам, к воздействию агрессивной среды; не имеет запаха. Изображения чёткие, с глянцем, не портятся при воздействии солнечных лучей, влаги, пара, при низких и высоких температурах. Антивандальное покрытие моется, позволяет легко удалять краску, граффити, клей от объявлений. Покрытие не оказывает негативного воздействия на свойства и характеристики обработанного материала, соответствует санитарным, экологическим нормам и пожаробезопасно.
- Металлические стойки, каркас сиденья подвергаются обезжириванию, промывке, барботажу, травлению, а затем защитному оцинкованию или нанесению цинкосодержащего грунта с последующей окраской в автоматической линии. Окраска – полиэфирная порошковая с высокотемпературной сушкой. Порошковая краска имеет высокую стойкость к климатическим условиям и эстетичный внешний вид. Изделия из металла имеют плавные радиусы закругления и тщательную обработку краев.
- На качели установлена идентификационная табличка.
Условия монтажа
Установка оборудования проводится на ровной площадке, свободной от насаждений (см. рекомендации Министерства Регионального Развития РФ от 27 декабря 2011 г. № 613 "Об утверждении Методических рекомендаций по разработке норм и правил по благоустройству территорий муниципальных образований"), в соответствии с требованиями завода-изготовителя. При нарушении требований к монтажу и установке изделий гарантийные обязательства снимаются с завода-изготовителя.

* Производитель оставляет за собой право выбора материалов, изготавливаемых комплектующих и внесения изменений в конструкцию и комплектацию изделия в целях улучшения качественных характеристик.
Готовые проекты площадок с товаром Качалка Дуэт КЧ001.00.1