МД410.00
МД410.00
МД410.00
МД410.00
Возрастная
группа
7-12 лет
Максимальное
количество человек
3
Максимальная
высота падения
1,4 м
Зона
безопасности
29,49 м
Высота
спуска
1,4 м

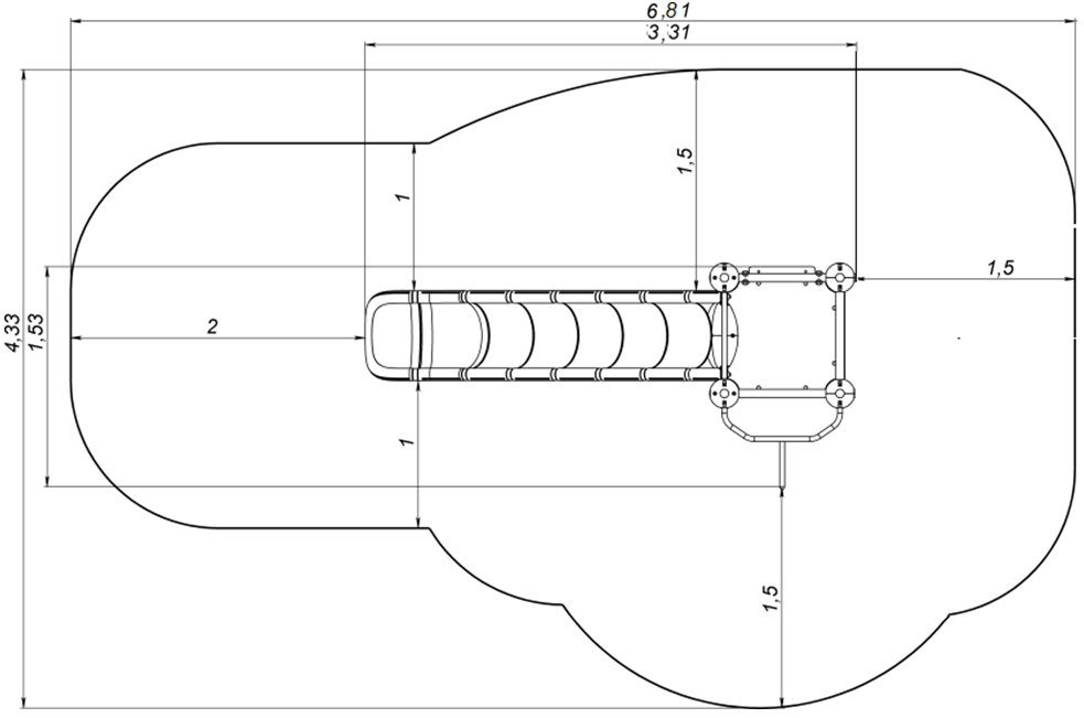
Горка Муссон МД410.00

Габариты, ДхШхВ
3,31 х 1,53 x 2,40 м
Масса изделия, кг
222,08
Размеры площадки для установки
Не менее 4,33 х 6,81 м
Возраст
7-12 лет
Гарантийный срок
12 месяцев
Назначенный срок службы
5 лет
Сведения о сертификате
ЕАЭС RU C-RU.HA46.B.00268/20 с 01.06.20 по 31.05.25
Соответствие стандартам
Данное изделие спроектировано и изготовлено согласно ТР042/2017, ГОСТ Р 52169-2012 и соответствует требованиям ТУ 28.99.32-001-09880273-2019
Требуемая минимальная толщина синтетического покрытия
50 мм

Горка – любимый снаряд для детей различных возрастов. Школьники с удовольствием скатываются с детских горок, испытывая собственную смелость, силу и ловкость. Горка соответствует правилам безопасности, имеет сертификат соответствия и может быть использована для оборудования детских площадок во дворах, зонах отдыха, парках. При проектировании и выборе материалов для производства, были учтены самые высокие требования безопасности, предъявляемые к детскому игровому и спортивному оборудованию не только в России, но и за рубежом.

* Производитель оставляет за собой право выбора материалов, изготавливаемых комплектующих и внесения изменений в конструкцию и комплектацию изделия в целях улучшения качественных характеристик.

Готовые проекты площадок с товаром Горка Муссон МД410.00

Паттерн
Длина
3.76
Ширина
2.46
Высота
3.79
Паттерн
Длина
3.82
Ширина
2.11
Высота
3.19
Паттерн
Длина
4.63
Ширина
0.90
Высота
2.35
Паттерн
Длина
3.82
Ширина
1.17
Высота
1.94