ДГ001.2
ДГ001.2
ДГ001.2
ДГ001.2
Возрастная
группа
3-7 лет
Максимальное
количество человек
13
Максимальная
высота падения
0,9 м м
Высота
спуска
0,9 м м

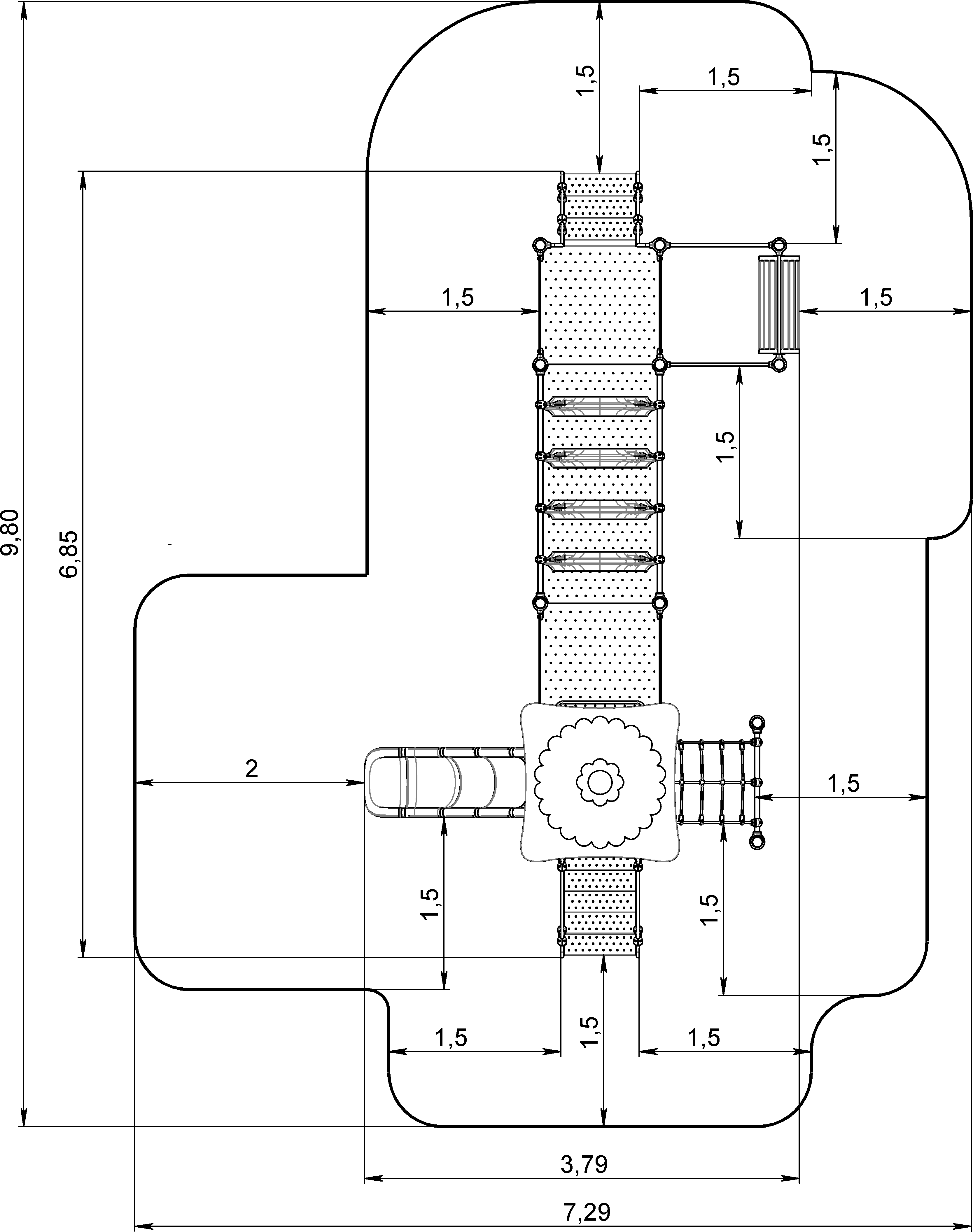
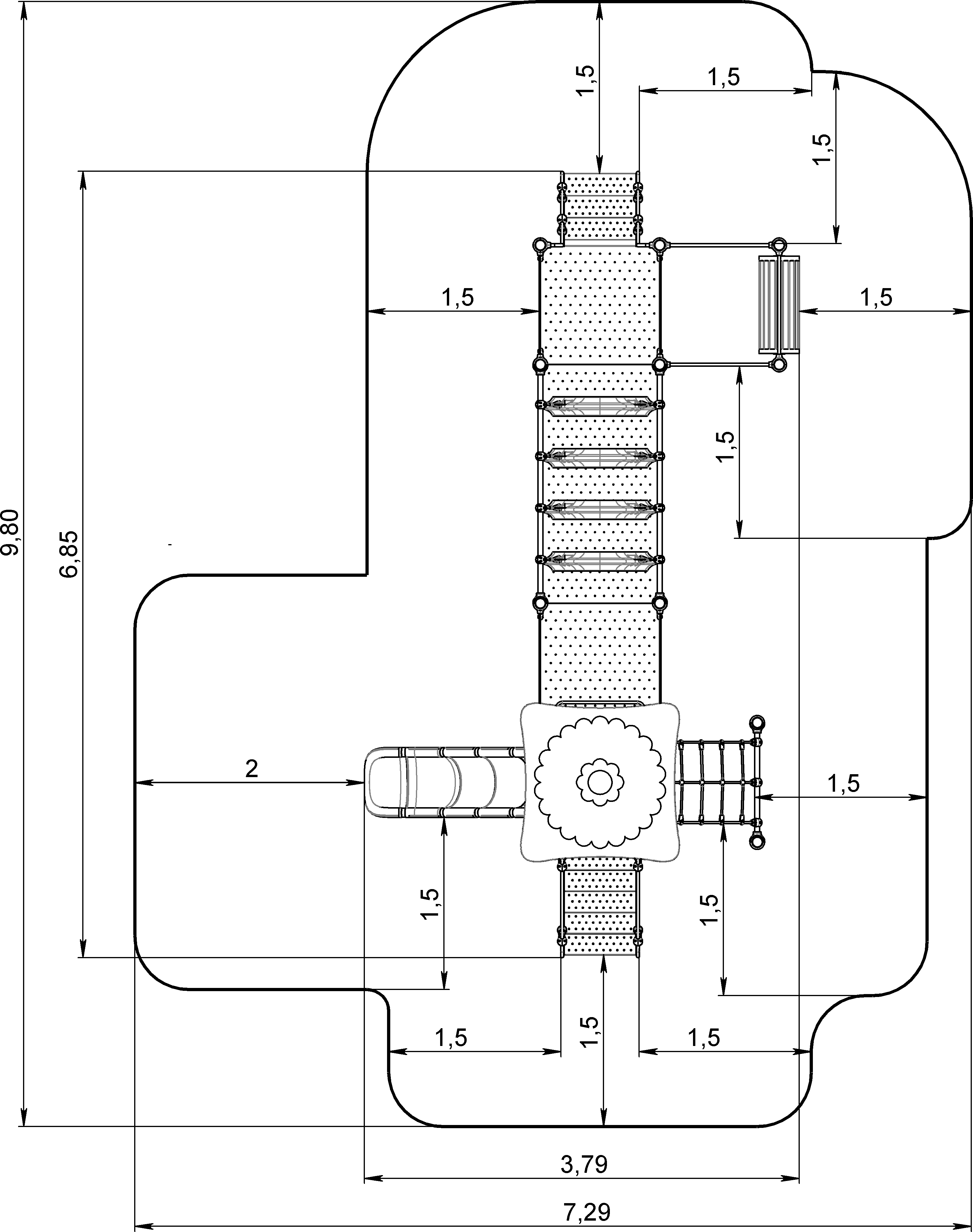
Детский городок Родос ДГ001.2

Паттерн
Габариты, ДхШхВ
6.85 х 3.79 x 3.19 м
Масса изделия, кг
601,25
Размеры площадки для установки
Не менее 9,8 х 7,29 м
Возраст
3-7 лет
Гарантийный срок
12 месяцев
Назначенный срок службы
5 лет
Сведения о сертификате
ЕАЭС RU C-RU.HA46.B.00268/20 с 01.06.20 по 31.05.25
Соответствие стандартам
Данное изделие спроектировано и изготовлено согласно ТР042/2017, ГОСТ Р 52169-2012 и соответствует требованиям ТУ 28.99.32-001-09880273-2019
Требуемая минимальная толщина синтетического покрытия
20 мм
Комплектация:
Детский городок состоит из открытых площадок и площадки закрытой 4-гранной крышей. Городок оснащен двумя прямыми лестницами (900 и 600 мм) для подъема, открытым прямым пластиковым спуском, беговым барабаном, перемычками и перекладинами. Оборудован одним канатным лазом и лазом “Тоннель” (4 шт.) на канатных подвесах (по 3 шт. на один лаз).

Постоянное движение – естественное состояние любого ребенка. Детские городки «ВегаГрупп» - это именно то место, где ребенок получает необходимую нагрузку, дышит свежим воздухом и активно проводит время.

Они наполнены разнообразными элементами, которые побуждают маленьких непосед прыгать, лазать, подтягиваться, карабкаться вверх и спускаться вниз. Каждый элемент городка ориентирован на тренировку и развитие различных навыков малыша, способствует не только физическому, но и умственному развитию ребенка. Ребенок учится взаимодействовать с другими детьми, строить отношения и познает правила поведения в обществе.

  • Каркас городка выполнен из опорных стоек в количестве 14 шт. Опорная стойка представляет собой цельнометаллическую конструкцию из стальной трубы диаметром не менее 89 мм, с толщиной стенки не менее 2 мм, длиной 600-2700 мм. Опорные стойки устанавливаются с помощью специальных закладных под трубу (из арматуры длиной не менее 200 мм, диаметром не менее 8 мм) методом бетонирования.
  • Разноуровневые площадки основания выполнены из стального листа с противоскользящей просечкой, изготовленной методом вырубки. Толщина листа не менее 1,5 мм. Площадки имеют дополнительные ребра жесткости из профильной трубы в виде специальной конструкции, проваренной Х-образно по периметру. Площадки разной высоты соединяются порожками 300 мм, выполненными из трубы диаметром не менее 26,8 мм с толщиной стенки не менее 2,8 мм.
  • Пластиковые элементы открытого спуска, козырек, барабан, лаз “Тоннель” и крыша изготовлены из линейного полиэтилена низкого давления методом ротоформования. У начала прямого спуска установлена перекладина, за которую ребенок может держаться, когда садится на спуск. Перекладина закрыта декоративным пластиковым козырьком для обеспечения безопасности. Спуск фиксируется на уровне земли с помощью закладной под трубу методом бетонирования.
  • Беговой барабан оснащен валом, изготовленным из металлической трубы диаметром не менее 21,3 мм с толщиной стенки 2,8 мм. Оборудован для безопасности поручнем, изготовленным из металлической трубы диаметром не менее 26,8 мм, толщиной не менее 2,8 мм.
  • Канатный лаз и подвесы лаза “Тоннель” изготавливаются из комбинированного шестипрядного каната диаметром не менее 16 мм, который состоит из полипропиленовых прядей, шести оцинкованных жил и усиленного центрального полипропиленового сердечника для увеличения прочности и гибкости, что позволяет использовать его для конструкций сложных форм. Материал каната устойчив к воздействию УФ-излучения, не выгорает, хорошо сопротивляется механическим воздействиям. Все соединительные элементы, используемые для плетения сеток и лазов, изготавливаются из алюминиевого сплава на автоматизированной линии.
  • Лестница 900 мм со ступенями не менее 6 шт. и лестница 600 мм со ступенями не менее 4 шт изготовлены из стального листа толщиной не менее 1,5 мм с противоскользящей просечкой (метод вырубки). Лестницы имеют дополнительные ребра жесткости и оборудована перилами из металлической трубы диаметром не менее 26,8 мм с толщиной стенки не менее 2,8 мм. Поперечины перил, расположенные ниже основного поручня, выполнены из трубы диаметром не менее 21,3 мм с толщиной стенки не менее 2,8 мм.
  • Боковые панели, вставки перил, декоративные изготовлены из влагостойкой фанеры FOF толщиной не менее 12 мм. Кромки фанеры закруглены и шлифованы.
  • Элементы к каркасу городка крепятся при помощи пластиковых хомутов из стеклонаполненного полиамида, фиксирующихся болтовыми соединениями, скрытыми в конструкции хомута. Использование стекловолоконного наполнителя увеличило прочностью, жесткость, стойкость к теплу и растрескиванию. Для надежной фиксации хомутов предусмотрены уплотнительные резиновые вставки, благодаря чему хомут плотно прилегает к трубе, не скользит в процессе эксплуатации.
  • Все открытые болтовые соединения должны защищаться пластиковыми заглушками; концы болтов должны быть обрезаны и защищены травмобезопасными пластиковыми колпачками.
  • В местах обрезки труб предусмотрены пластмассовые декоративные заглушки.
  • Все изображения печатаются износостойкими красками на UV-принтере с нанесением стилистического изображения и покрытием дополнительным финишным слоем защитного антивандального двухкомпонентного лака, который образует прочную износостойкую пленку. Готовое покрытие химически инертно, не токсично, устойчиво к трению, царапинам, к воздействию агрессивной среды; не имеет запаха. Изображения чёткие, с глянцем, не портятся при воздействии солнечных лучей, влаги, пара, при низких и высоких температурах. Антивандальное покрытие моется, позволяет легко удалять краску, граффити, клей от объявлений. Покрытие не оказывает негативного воздействия на свойства и характеристики обработанного материала, соответствует санитарным, экологическим нормам и пожаробезопасно.
  • Все металлические конструкции городка подвергаются обезжириванию, промывке, барботажу, травлению, а затем защитному оцинкованию или нанесению цинкосодержащего грунта с последующей окраской в автоматической линии. Окраска – полиэфирная порошковая с высокотемпературной сушкой. Порошковая краска имеет высокую стойкость к климатическим условиям и эстетичный внешний вид. Изделия из металла имеют плавные радиусы закругления и тщательную обработку швов. Сварные швы гладкие и исключают возможность травмирования пользователей при контакте.
  • На игровой комплекс установлена идентификационная табличка.

Условия монтажа

Установка оборудования проводится на ровной площадке, свободной от насаждений (см. рекомендации Министерства Регионального Развития РФ от 27 декабря 2011 г. № 613 "Об утверждении Методических рекомендаций по разработке норм и правил по благоустройству территорий муниципальных образований"), в соответствии с требованиями завода-изготовителя. При нарушении требований к монтажу и установке изделий гарантийные обязательства снимаются с завода-изготовителя.

* Производитель оставляет за собой право выбора материалов, изготавливаемых комплектующих и внесения изменений в конструкцию и комплектацию изделия в целях улучшения качественных характеристик.

Длина
14.28
Ширина
5.66
Высота
6.23
Длина
9.42
Ширина
1.26
Высота
2.79
Длина
5.90
Ширина
4.17
Высота
6.20