Гибкие элементы для лазания Тритопия ККК518.00.1
- Габариты, ДхШхВ
- 6.69 х 5.87 x 7.32 м
- Масса изделия, кг
- 2854,9
- Размеры площадки для установки
- Не менее 11,87 х 11,69 м
- Возраст
- 7+ лет
- Гарантийный срок
- 12 месяцев
- Назначенный срок службы
- 5 лет
- Сведения о сертификате
- ЕАЭС RU C-RU.HA46.B.00268/20 с 01.06.20 по 31.05.25
- Соответствие стандартам
- Данное изделие спроектировано и изготовлено согласно ТР042/2017, ГОСТ Р 52169-2012 и соответствует требованиям ТУ 28.99.32-001-09880273-2019
- Требуемая минимальная толщина синтетического покрытия
- 20 мм
Инновационные канатные комплексы и системы внесут разнообразие в классический набор МАФов и вдохнут новизну в любую проектируемую и уже существующую уличную игровую площадку. После долгой работы над новой линейкой предлагаем яркое, современное и по-настоящему актуальное спортивно-развивающее оборудование на основе надёжных и безопасных канатных систем. Канатные комплексы создают для детей безопасную альтернативу лазания по деревьям, способствует как их физическому, так и умственному развитию, помогают вырабатывать силу, ловкость, чувство координации и логику. Конструкция комплекса разработана таким образом, что ребенок, передвигающийся внутри него, полностью застрахован от падения вниз с большой высоты. Схема натяжения, прочность, упругость и мягкая гибкость канатов обеспечивают полную безопасность ребенка при потере им равновесия во время активного покорения высоты. Все элементы комплекса имеют гладкую поверхность, выполнены из безопасных и гипоаллергенных материалов.
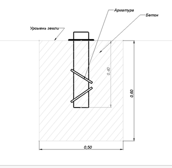
- Несущая конструкция (каркас) выполнена из прямых перемычек в количестве 61 шт. и перемычек №1-10 в количестве 45 шт. Перемычки выполнены из стальной трубы диаметром не менее 42,3 мм, с толщиной стенки не менее 3,2 мм. Конструкция устанавливается с помощью специальных закладных деталей из трубы 42,3 мм в количестве 5 шт. и арматуры длиной не менее 200 мм, диаметром не менее 8 мм методом бетонирования. Точки опоры основной конструкции образуют правильный пятиугольник, а перемычки, установленные под углом к поверхности основания, образуют скрученную пятиугольную призму. Дополнительно конструкция фиксируется с помощью опорных стоек из трубы диаметром не менее 89 мм: на высоте 2,3 м - 5 шт., на высоте 5,9 м – 1 шт. Опорные стойки также устанавливаются с помощью закладных под трубу (арматура длиной не менее 200 мм, диаметром не менее 8 мм) методом бетонирования.
- Перемычки, стяжки каркаса крепятся системой надежного болтового соединения деталей и фиксируются в посадочных отверстиях специальных соединительных шаров с крышками (сфера ф250 мм) в количестве 38 шт. Ребра жесткости расположены таким образом, что по всей внешней поверхности комплекса образуются проёмы треугольной формы.
- Сферы выполнены из высокопрочного сплава алюминия. В соединительные шары (в 25 шт.) монтируются натяжитель канатов и фиксатор натяжителя канатов для крепления канатных лазов.
- Внутреннее пространство комплекса заполнено канатами для лазания. Канатные лазы, сетки крепятся к перемычкам из металлической трубы диаметром не менее 42,3 мм при помощи полухомутов 42-канат алюминий (6 шт.). Лазы и сетки изготавливаются из комбинированного шестипрядного каната диаметром не менее 16 мм, который состоит из полипропиленовых прядей, шести оцинкованных жил и усиленного центрального полипропиленового сердечника для увеличения прочности и гибкости, что позволяет использовать его для конструкций сложных форм. Материал каната устойчив к воздействию УФ-излучения, не выгорает, хорошо сопротивляется механическим воздействиям. Все соединительные элементы, используемые для плетения сеток и лазов, изготавливаются из алюминиевого сплава на автоматизированной линии. Сетки треугольные в металлическом каркасе (5 шт.) установлены в проёмы правильной треугольной формы.
- Пластиковые элементы закрытого винтового спуска изготовлены методом штамповки в матрице под высоким давлением. Элементы пластикового спуска должны быть скреплены между собой соединительными ободами закрытого спуска (6 шт.) с использованием уплотнения обода из ленты конв. 8 мм и закреплены болтами. Спуск фиксируется в середине на стойке с консолью под закрытый спуск и на уровне земли - на опоре финишного элемента закрытого спуска (2 шт.) методом бетонирования.
- Панель №1 (4 шт.), панель №3 (17 шт.), панель №4 (5 шт.), панель №5 (5 шт.), панель №6 (4 шт.), панель №7 (3 шт.), пластина-опора финишного элемента закрытого спуска (2 шт.), полукольцо конечного элемента закрытого спуска (2 шт.) изготовлены из влагостойкой фанеры FOF толщиной не менее 12 мм. Панель треугольная закрытого спуска (1 шт.) - толщиной не менее 15 мм. Кромки фанеры закруглены и шлифованы. Панели крепятся при помощи держателей для крепления панели фанерной (356 шт.).
- Элементы к каркасу крепятся при помощи пластиковых хомутов из стеклонаполненного полиамида, фиксирующихся болтовыми соединениями, скрытыми в конструкции хомута. Использование стекловолоконного наполнителя увеличило прочностью, жесткость, стойкость к теплу и растрескиванию. Для надежной фиксации хомутов предусмотрены уплотнительные резиновые вставки, благодаря чему хомут плотно прилегает к трубе, не скользит в процессе эксплуатации.
- Все открытые болтовые соединения должны защищаться пластиковыми заглушками; концы болтов должны быть обрезаны и защищены травмобезопасными пластиковыми колпачками.
- В местах обрезки труб предусмотрены круглые пластмассовые декоративные заглушки для труб, зафиксированные на трубе при помощи заклепок. Заглушки изготовлены путем литья пластика на термопластичных автоматах.
- Все изображения печатаются износостойкими красками на UV-принтере с нанесением стилистического изображения и покрытием дополнительным финишным слоем защитного антивандального двухкомпонентного лака, который образует прочную износостойкую пленку. Готовое покрытие химически инертно, не токсично, гипоаллергенно, устойчиво к трению, царапинам, к воздействию агрессивной среды; не имеет запаха. Изображения чёткие, с глянцем, не портятся при воздействии солнечных лучей, влаги, пара, при низких и высоких температурах. Антивандальное покрытие моется, позволяет легко удалять краску, граффити, клей от объявлений. Покрытие не оказывает негативного воздействия на свойства и характеристики обработанного материала, соответствует санитарным, экологическим нормам и пожаробезопасно.
- Все металлические конструкции подвергаются обезжириванию, промывке, барботажу, травлению, а затем защитному оцинкованию или нанесению цинкосодержащего грунта с последующей окраской в автоматической линии. Окраска – полиэфирная порошковая с высокотемпературной сушкой. Порошковая краска имеет высокую стойкость к климатическим условиям и эстетичный внешний вид. Изделия из металла имеют плавные радиусы закругления и тщательную обработку швов. Сварные швы гладкие и исключают возможность травмирования пользователей при контакте.
- На изделие установлена идентификационная табличка.
Условия монтажа
Установка оборудования проводится на ровной площадке, свободной от насаждений (см. рекомендации Министерства Регионального Развития РФ от 27 декабря 2011 г. № 613 "Об утверждении Методических рекомендаций по разработке норм и правил по благоустройству территорий муниципальных образований"), в соответствии с требованиями завода-изготовителя. При нарушении требований к монтажу и установке изделий гарантийные обязательства снимаются с завода-изготовителя.



* Производитель оставляет за собой право выбора материалов, изготавливаемых комплектующих и внесения изменений в конструкцию и комплектацию изделия в целях улучшения качественных характеристик.