Качели двухсекционные Открытие КЧ110.00.1
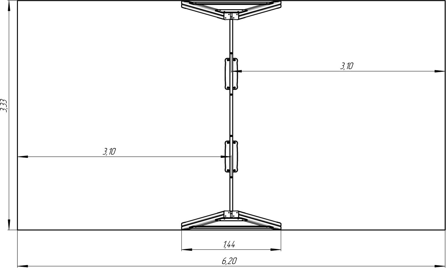
- Габариты, ДхШхВ
- 3,33 х 1,44 x 2,07 м
- Масса изделия, кг
- 110,81
- Размеры площадки для установки
- Не менее 3,33 х 6,2 м
- Возраст
- 7-12 лет
- Гарантийный срок
- 12 месяцев
- Назначенный срок службы
- 5 лет
- Сведения о сертификате
- ЕАЭС RU C-RU.HA46.B.00268/20 с 01.06.20 по 31.05.25
- Соответствие стандартам
- Данное изделие спроектировано и изготовлено согласно ТР042/2017, ГОСТ Р 52169-2012 и соответствует требованиям ТУ 28.99.32-001-09880273-2019
- Требуемая минимальная толщина синтетического покрытия
- 30 мм
Маятниковые качели любят многие дети самого разного возраста. На них можно не только весело проводить время, но и в игровой форме энергично с удовольствием укреплять здоровье, развивать мышцы рук, ног и спины, осанку, вестибулярный аппарат и чувство равновесия, улучшать координацию в пространстве. Современные маятниковые качели удивительно красивые и своим видом еще больше привлекают детвору покататься на них. Разнообразие моделей и яркие краски маятниковых качелей вызывает у детей желание как можно скорее начать игру. Двухсекционные качели способствуют развитию у детей и подростков навыков межличностного общения, учат правильно выстраивать коммуникацию. Ребята не просто проводят время на площадке, но и заводят новых друзей, веселятся вместе.
- Деревянный каркас качели выполнен из столбов (клееный брус) размером 92x92 мм длиной 2300 мм (4 шт.) и балки-перекладины из профильной трубы с подвесом для двухсекционных качелей. Наклонные опорные стойки качелей крепятся между собой с помощью накладок из фанеры и устанавливаются с помощью усиленных закладных деталей для бруса (4 шт.) методом бетонирования.
- Резиновые сиденья без спинки (2 шт.) крепятся к балке на подвесах ПКЗ-НС из нержавеющей стали с помощью цепи «curve» длиной 1350 мм (страховочная цепь+термоусадка).
- Накладка на столб (4 шт.), накладка нижняя (2 шт.), накладка верхняя (2 шт.) изготовлены из влагостойкой ламинированной фанеры FOF толщиной не менее 12 мм. Кромки фанеры закруглены и шлифованы.
- Все открытые болтовые соединения должны защищаться пластиковыми заглушками; концы болтов должны быть обрезаны и защищены травмобезопасными пластиковыми колпачками. Деревянные столбы сверху закрыты накладками на столб из фанеры.
- Все изображения печатаются износостойкими красками на UV-принтере с нанесением стилистического изображения и покрытием дополнительным финишным слоем защитного антивандального двухкомпонентного лака, который образует прочную износостойкую пленку. Готовое покрытие химически инертно, не токсично, гипоаллергенно, устойчиво к трению, царапинам, к воздействию агрессивной среды; не имеет запаха. Изображения чёткие, с глянцем, не портятся при воздействии солнечных лучей, влаги, пара, при низких и высоких температурах. Антивандальное покрытие моется, позволяет легко удалять краску, граффити, клей от объявлений. Покрытие не оказывает негативного воздействия на свойства и характеристики обработанного материала, соответствует санитарным, экологическим нормам и пожаробезопасно.
- Металлические элементы подвергаются обезжириванию, промывке, барботажу, травлению, а затем защитному оцинкованию или нанесению цинкосодержащего грунта с последующей окраской в автоматической линии. Окраска – полиэфирная порошковая с высокотемпературной сушкой. Порошковая краска имеет высокую стойкость к климатическим условиям и эстетичный внешний вид. Изделия из металла имеют плавные радиусы закругления и тщательную обработку краев.
- Все деревянные детали (столбы) изготавливаются из хвойных пород дерева. Доски проходят процесс камерной сушки, рейсмусования. Для формирования столбов 92х92 мм склеиваются две доски под высоким давлением на прессе. После финишной сушки проходят калибровку и профилирование с целью получения точных геометрических форм профиля. Со всех сторон столба выполняется технологический паз для уменьшения внутреннего напряжения, равномерного выделения влаги, снижения вероятности растрескивания древесины в процессе усадки/ деформации, для безопасного крепления различных панелей, элементов. Детали пропитаны современными составами в 2 слоя и обработаны двумя слоями финишного лака, которые обеспечивают как образование лаковой пленки на поверхности, так и защиту древесины от влаги, перепадов температуры, плесени и насекомых, препятствуют выцветанию и структурному разрушению. На качели установлена идентификационная табличка.
Условия монтажа
Установка оборудования проводится на ровной площадке, свободной от насаждений (см. рекомендации Министерства Регионального Развития РФ от 27 декабря 2011 г. № 613 "Об утверждении Методических рекомендаций по разработке норм и правил по благоустройству территорий муниципальных образований"), в соответствии с требованиями завода-изготовителя. При монтаже и бетонировке стоек из деревянного бруса расстояние от финишного покрытия до нижней точки бруса при вертикальном расположении стойки должно быть не более 50 мм, а при наклонном расположении стоек - не более 70 мм. При нарушении требований к монтажу и установке изделий гарантийные обязательства снимаются с завода-изготовителя.
* Производитель оставляет за собой право выбора материалов, изготавливаемых комплектующих и внесения изменений в конструкцию и комплектацию изделия в целях улучшения качественных характеристик.
Готовые проекты площадок с товаром Качели двухсекционные Открытие КЧ110.00.1
