МД105.00.1
МД105.00.1
МД105.00.1
МД105.00.1
Возрастная
группа
3-7 лет
Максимальное
количество человек
8
Максимальная
высота падения
0,6 м

Автобус Икарус МД105.00.1

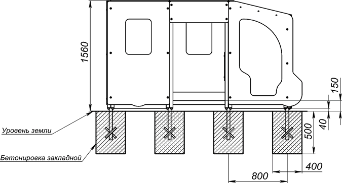
Габариты, ДхШхВ
2,66 х 0,91 x 1,56 м
Масса изделия, кг
318,96
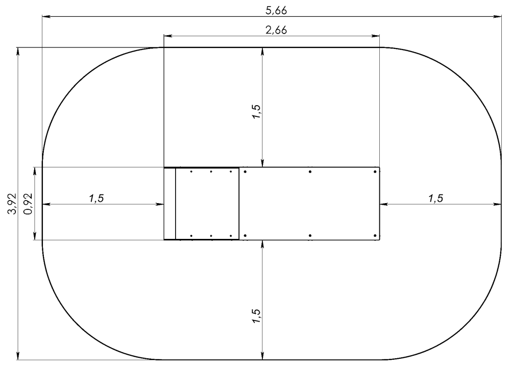
Размеры площадки для установки
Не менее 3,92 х 5,66 м
Возраст
3-7 лет
Гарантийный срок
12 месяцев
Назначенный срок службы
5 лет
Сведения о сертификате
ЕАЭС RU C-RU.HA46.B.00268/20 с 01.06.20 по 31.05.25
Соответствие стандартам
Данное изделие спроектировано и изготовлено согласно ТР042/2017, ГОСТ Р 52169-2012 и соответствует требованиям ТУ 28.99.32-001-09880273-2019
Комплектация:

Машинка состоит из деревянного каркаса (столбы и площадки) и панелей фанеры. Оборудована лавочками (3 шт.), игровыми накладками и декоративными деталями.

Каждый ребенок с удовольствием играет в детский уличный игровой транспорт, превращается в капитана, отважного пилотом или машиниста. Тематические элементы позволяют ребятам развивать сообразительность и двигательные функции на тех моделях, которые уже хорошо знакомы им по городским пейзажам, морским сюжетам и мультфильмам с техникой. Детская фантазия безгранична. Машинки, паровозики, кораблики и игрушечные самолеты всегда собирают вокруг себя большое количество любознательных малышей. Это немаловажно, ведь дети учатся общаться со сверстниками во время коллективной игры.

  • Деревянный каркас машинки состоит из столбов 92x92 мм длиной 1300 мм (2 шт.), длиной 1500 мм (6 шт.). Со всех сторон столба выполнен технологический паз. Каркас крепиться с помощью опорных закладных под стойки в количестве 8 шт.
  • Опорные закладные представляют собой цельнометаллическую конструкцию из стальных труб диаметром не менее 42,3 мм, с толщиной стенки не менее 3,2 мм и площадки из стального листа толщиной не менее 5 мм. Монтаж конструкции выполняется методом бетонирования.
  • Площадки (3 шт.) выполнены из опорных досок основания размером 70х140х728 мм (по 4 шт.), фиксирующихся с помощью уголков крепления к брусу (8 шт.) и досок настила 30х90 мм, соединенных c помощью бруска размером не менее 40х40 мм.
  • Панель боковая передняя (2 шт.), панель задняя с колесом (2 шт.), панель задняя, козырек, крыша кабины, крыша, панель передняя, панель средняя (2 шт.), панель боковая изготовлены из влагостойкой ламинированной фанеры FOF толщиной не менее 15 мм. Кромки фанеры закруглены и шлифованы.
  • Лавочки (3 шт.) из досок размером 20х90х776 мм закреплены при помощи угловых кронштейнов на брус 92х92 мм (6 шт.) и металлических уголков крепления к брусу (4 шт.).
  • Панели крепятся между собой при помощи металлических универсальных уголков крепления (отливка) 90° в количестве 6 шт., фиксирующихся болтовыми соединениями.
  • Все открытые болтовые соединения должны защищаться пластиковыми заглушками; концы болтов должны быть обрезаны и защищены травмобезопасными пластиковыми колпачками.
  • Все изображения печатаются износостойкими красками на UV-принтере с нанесением стилистического изображения и покрытием дополнительным финишным слоем защитного антивандального двухкомпонентного лака, который образует прочную износостойкую пленку. Готовое покрытие химически инертно, не токсично, гипоаллергенно, устойчиво к трению, царапинам, к воздействию агрессивной среды; не имеет запаха. Изображения чёткие, с глянцем, не портятся при воздействии солнечных лучей, влаги, пара, при низких и высоких температурах. Антивандальное покрытие моется, позволяет легко удалять краску, граффити, клей от объявлений. Покрытие не оказывает негативного воздействия на свойства и характеристики обработанного материала, соответствует санитарным, экологическим нормам и пожаробезопасно.
  • Металлические элементы подвергаются обезжириванию, промывке, барботажу, травлению, а затем защитному оцинкованию или нанесению цинкосодержащего грунта с последующей окраской в автоматической линии. Окраска – полиэфирная порошковая с высокотемпературной сушкой. Порошковая краска имеет высокую стойкость к климатическим условиям и эстетичный внешний вид. Изделия из металла имеют плавные радиусы закругления и тщательную обработку краев.
  • Все деревянные детали (столбы, доски) изготавливаются из хвойных пород дерева. Доски проходят процесс камерной сушки, рейсмусования. Для формирования столбов 92х92 мм склеиваются две доски под высоким давлением на прессе. После финишной сушки проходят калибровку и профилирование с целью получения точных геометрических форм профиля. Со всех сторон столба выполняется технологический паз для уменьшения внутреннего напряжения, равномерного выделения влаги, снижения вероятности растрескивания древесины в процессе усадки/ деформации, для безопасного крепления различных панелей, элементов. Детали пропитаны современными составами в 2 слоя и обработаны двумя слоями финишного лака, которые обеспечивают как образование лаковой пленки на поверхности, так и защиту древесины от влаги, перепадов температуры, плесени и насекомых, препятствуют выцветанию и структурному разрушению.
  • На машинку установлена идентификационная табличка.

Условия монтажа

Установка оборудования проводится на ровной площадке, свободной от насаждений (см. рекомендации Министерства Регионального Развития РФ от 27 декабря 2011 г. № 613 "Об утверждении Методических рекомендаций по разработке норм и правил по благоустройству территорий муниципальных образований"), в соответствии с требованиями завода-изготовителя. При монтаже и бетонировке стоек из деревянного бруса расстояние от финишного покрытия до нижней точки бруса при вертикальном расположении стойки должно быть не более 50 мм, а при наклонном расположении стоек - не более 70 мм. При нарушении требований к монтажу и установке изделий гарантийные обязательства снимаются с завода-изготовителя.


* Производитель оставляет за собой право выбора материалов, изготавливаемых комплектующих и внесения изменений в конструкцию и комплектацию изделия в целях улучшения качественных характеристик.

Длина
2.41
Ширина
1.30
Высота
2.00
Длина
5.33
Ширина
2.17
Высота
2.42
Длина
2,93
Ширина
1.33
Высота
2.40
Длина
2.06
Ширина
0.91
Высота
1.78